Neubau der Frida Levy Gesamtschule in Essen – moderne Großküchenplanung für gesunde Schulverpflegung
Wir freuen uns über ein neues und spannendes Projekt im Bereich Schulverpflegung begleiten zu dürfen.
Die Profi-tabel Resultants GmbH & Co. KG wurde mit der Großküchenplanung für den Neubau der Frida Levy Gesamtschule in Essen beauftragt und es wird eine sechszügige Gesamtschule mit eigener Sporthalle entstehen.
Ein Schulneubau mit Weitblick - inklusive moderner Großküchenplanung
Der Neubau entsteht auf dem bestehenden Grundstück der Schule inmitten von Essen. Gemeinsam mit Bez + Kock Architekten wird ein moderner Bildungsstandort realisiert, der Lernen, Leben und Verpflegung miteinander verbindet. Das neue Schulgebäude soll nicht nur funktional, sondern auch ein Ort des Wohlfühlens und der Gemeinschaft sein.
Neubau der Frida Levy Gesamtschule: ein Ort der Gemeinschaft
Die Frida Levy Gesamtschule ist eine kreativ orientierte Schule mit Schwerpunkt auf Kunst und Musik, die besonderen Wert auf Kreativität, Toleranz und soziale Verantwortung legt.
Etwa 1.200 Schülerinnen und Schüler besuchen derzeit die Schule. Sie lernen mit digitalen Medien wie iPads, nehmen an Projekten zur Berufsorientierung teil und arbeiten in einer von Respekt und Vielfalt geprägten Atmosphäre. Die Schule trägt den Titel „Schule ohne Rassismus – Schule mit Courage“ und lebt diese Haltung im Schulalltag.
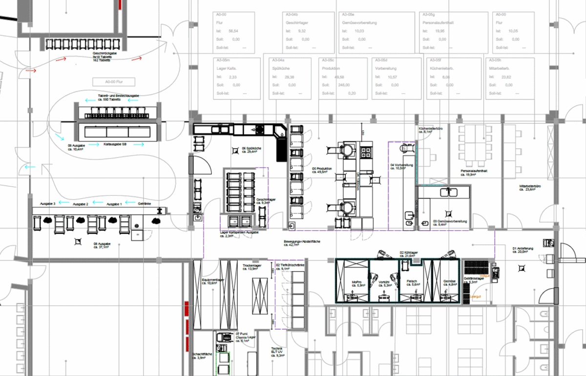
Frischkochküche für 550 Schülerinnen und Schüler pro Tag
Ein zentrales Element des Neubaus ist die moderne Frischkochküche. Sie wird täglich rund 550 Schülerinnen und Schülern mit frisch zubereiteten Mahlzeiten versorgen. Keine klassische Menüauswahl, aber ein täglich wechselndes Gericht: frisch, ausgewogen und direkt vor Ort zubereitet.
Ergänzende Zwischenverpflegung für den Schulalltag
Zusätzlich ist ein Schüler-Café mit Snacks und Getränken geplant, das ergänzend zur Mittagsverpflegung angeboten werden soll.
Von der Planung bis zur Umsetzung
Eine komplexe Großkuchenplanung, die Flexibilität und enge Abstimmung erfordert.
Wir sind aktuell in der Leistungsphase 2, der Vorplanung. Die Grundlagen werden zurzeit gemeinsam mit dem Bauherrn abgestimmt. Beauftragt sind wir für die Leistungsphasen 1 bis 8 der HOAI, also von der Grundlagenermittlung bis zur Objektüberwachung.
Das Projekt wird intern von unserem Kollegen Manuel und Corinna als Projektleiter verantwortet. Bei dieser Zusammenarbeit setzen wir auf eine offene und effektive Teamarbeit. Diese enge Abstimmung ermöglicht es uns, flexibel auf Anforderungen zu reagieren und stets praxisnahe Lösungen zu entwickeln.
Ein Beitrag zu nachhaltiger Schulverpflegung
Mit diesem Projekt leisten wir einen aktiven Beitrag zu einer gesunden, frischen und zukunftsfähigen Schulverpflegung in Essen. Wir freuen uns, Teil eines Bauvorhabens zu sein, das nicht nur baulich, sondern auch pädagogisch und gesellschaftlich neue Maßstäbe setzen wird.
ptr/sar

